
MODELO TRUKUR 77,36M2
Ideal para construir en todo el pais
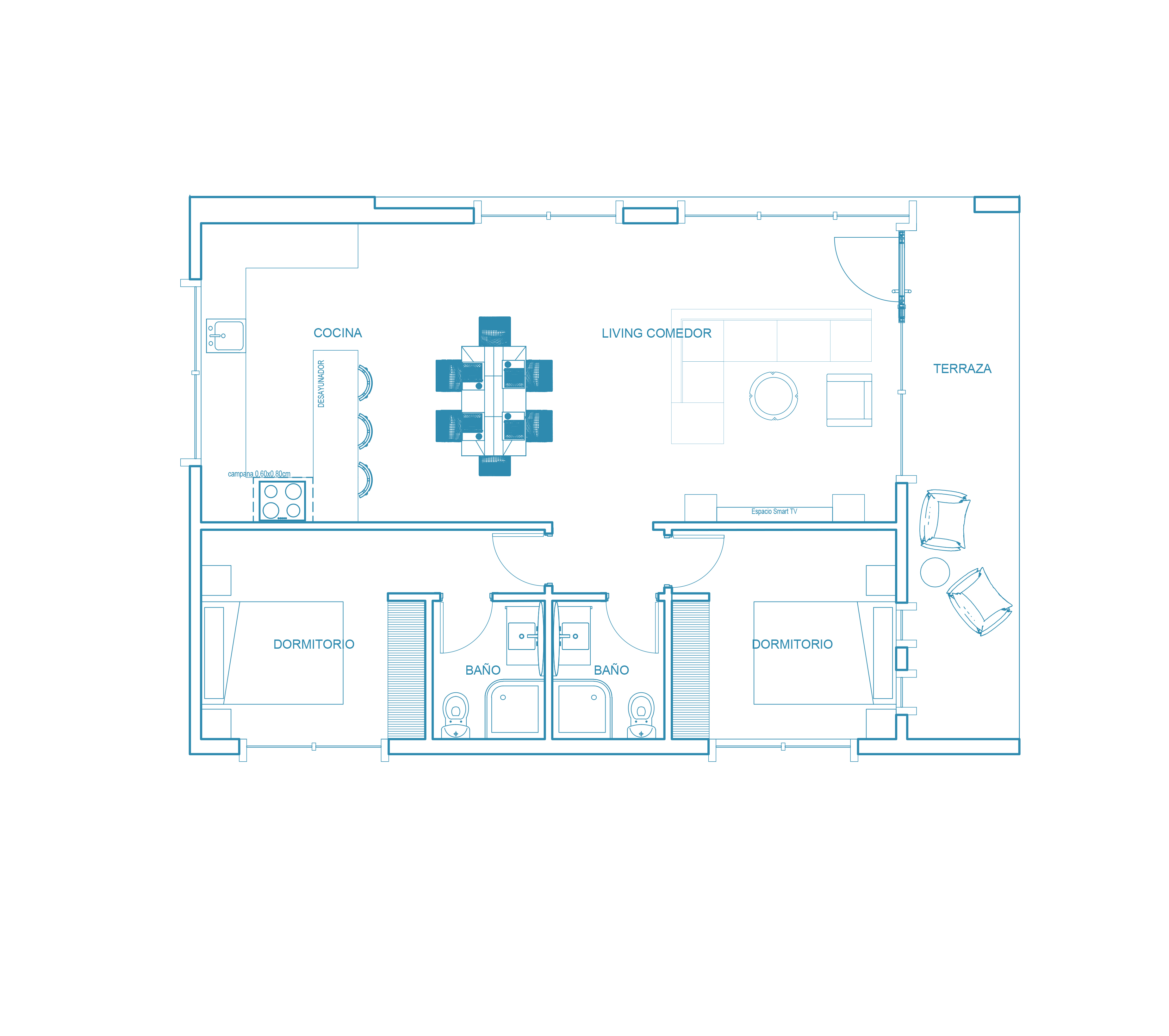
TRUKUR ES IDEAL PARA CONSTRUIR TU CASA DESDE EL NORTE AL SUR DEL PAIS 🏠✨
El modelo TRUKUR fue diseñado para destacar sin importar la ciudad o clima donde se construirá, otorgando la mayor comodidad posible para toda la familia, con la elegancia característica de Inmobiliaria HOME+.
Principales características:
2 Dormitorios: Espacios amplios y acogedores con grandes ventanales para permitir una excelente iluminación.
2 Baños: Cada baño otorga comodidad y privacidad para todos los integrantes del hogar.
Terraza cubierta: Un espacio diseñado para facilitar el movimiento por el exterior de tu hogar y equipado para disfrutar del entorno y el aire libre, ideal para reuniones y momentos distendidos con amigos y familiares.
Sala de Estar, living y cocina: Diseño abierto que facilita la interacción y la convivencia en los espacios comunes de tu hogar.
Tu hogar con entrega llave en mano
¿Qué incluye la llave en mano de HOME+?
Al realizar tu proyecto junto a inmobiliaria HOME+ cuentas con una verdadera experiencia de entrega llave en mano, encargándonos de entregar tu hogar de manera impecable desde el cimiento hasta la ultima terminación y artefacto. Para esto se procede a solicitar el permiso de edificación de cada proyecto y entregando tu nuevo hogar con su respectiva recepción municipal.
Tu proyecto con entrega llave en mano incluye:
- Obra gruesa de tu hogar 100% construidos con el sistema de panelizado termoaislante. 
- Cimientos y sobrecimientos en radier de hormigón. 
- Permiso de edificación y recepción municipal. 
- Ventanas Termopanel con marco PVC 
- Revestimiento exterior con siding fibrocemento o siding metálico PV4 o PV5 pre pintado. 
- Revestimiento interior con volcanita pintado de color a elección de cliente. 
- Revestimiento de porcelanato en zonas húmedas. 
- Piso vinílico de colores y texturas a elección de cada cliente 
- Muebles de cocina en MDF y granito. 
- Techumbre de teja asfáltica o PV4 según proyecto 
- Puertas exteriores e interiores 
- Ventanales termo panel con marco PVC 
- Artefactos de primer nivel en baños 
- Instalaciones eléctricas, sanitarias y gasfitería con certificación SEC 
- Incluye fosa séptica en todos nuestros proyectos en caso de no contar con alcantarillado 
Construye tu nuevo hogar con HOME+
Selecciona tu modelo y cotiza
1
2
Firma el contrato de compraventa
3
¡Disfruta de tu nuevo hogar!
Revisa nuestros más de 10 modelos disponibles entre los 40m2 y los 520m2 y selecciona tu favorito. Contáctanos para obtener una cotización formal por la compra de tu nuevo hogar.
Cerramos el acuerdo comercial con la firma del contrato de compra venta para la construcción de tu hogar. El contrato se realiza con firma certificada ante notario.
Una vez acordada la compra de tu casa comenzamos con la solicitud de permiso municipal de edificación y posteriormente el inicio de la obra.
4
Construcción de tu hogar y gestión de permisos municipales
Una vez finalizada la construcción de tu hogar realizaremos la entrega con su respectiva recepción municipal. ¡Ahora disfruta de tu nuevo hogar!
LLENA EL FORMULARIO Y COTIZA TU NUEVO HOGAR
En Inmobiliaria Home+ estamos aquí para ayudarte a cumplir tu proyecto. Si deseas más información sobre nuestras casas premium y el sistema de construcción de panelizado termoaislante, no dudes en contactarnos.
Sólo llena el formulario y uno de nuestros asesores se pondrá en contacto lo antes posible, ya sea por WhatsApp o por llamada telefónica.
También te puede interesar
CONTACTO


marco.acevedo@homepluschile.com
+56 9 6660 7156
© 2025 Inmobiliaria HOME+ / Todos los derechos reservados
COTIZA TU NUEVO HOGAR IMPORTADO DIRECTO DESDE LOS ESTADOS UNIDOS
Tu hogar en cualquier lugar de Chile
